Дом с мансардой до 256м2
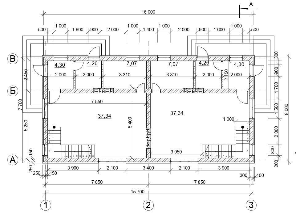
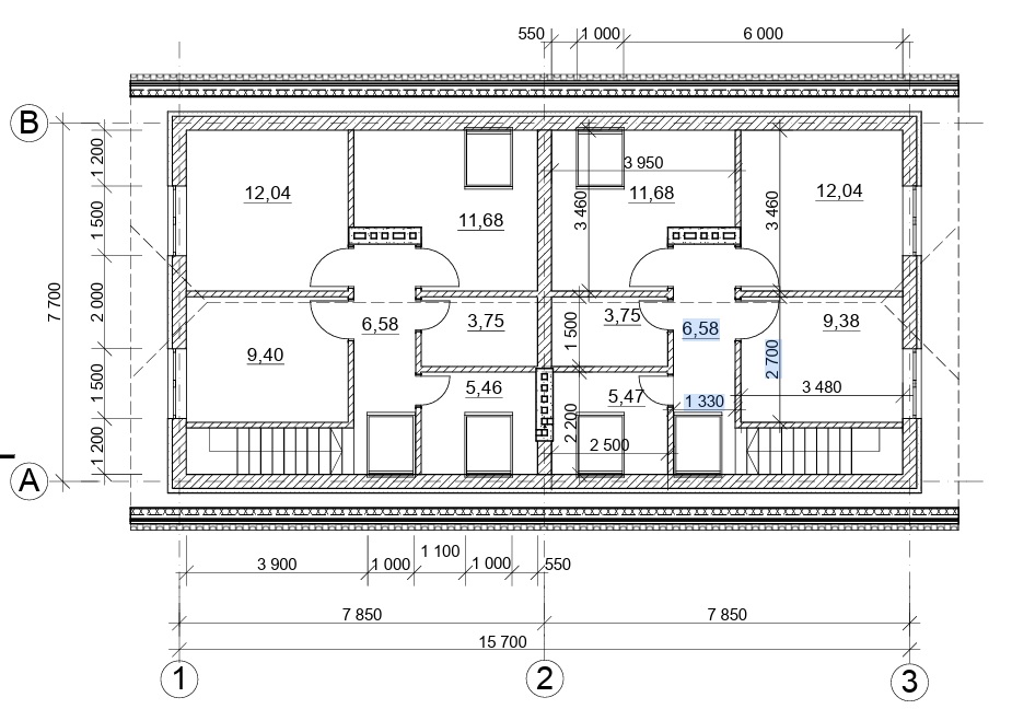
Современный дуплекс — дом на два хозяина в Калининграде Этот проект — отличное решение для больших семей или близких друзей, которые хотят жить рядом, сохраняя при этом приватность. Перед вами реализованный объект: энергоэффективный дом на два хозяина, сочетающий в себе современную эстетику и продуманную инженерную мысль. Профессиональное строительство домов в Калининграде такого типа требует особого внимания к звукоизоляции и разделению инженерных узлов, что и было успешно реализовано в данном проекте. Преимущества этого проекта: Две автономные секции: Каждая половина дома имеет собственный вход, свои панорамные окна и независимую планировку. Экономия на эксплуатации: Общая центральная стена значительно снижает теплопотери, что делает отопление дома более бюджетным. Мансардный этаж: Использование подкровельного пространства позволило увеличить жилую площадь каждой секции, не увеличивая пятно застройки. Качественные материалы: Стены из долговечного блока, кровля из металлочерепицы с гарантией и надежные мансардные окна для естественного освещения спален.
