Дом с мансардой до 160м2
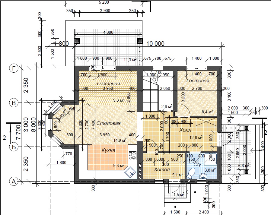
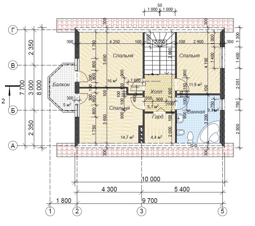
Основа хорошего дома — это грамотное зонирование пространства. В этом проекте каждый квадратный метр используется максимально эффективно. Первый этаж: Гостевая и рабочая зона Сердце дома: Просторная и светлая зона, объединяющая кухню (9,3 кв.м), столовую (14,9 кв.м) и гостиную (9,3 кв.м). Благодаря панорамному остеклению эркера эта часть дома всегда наполнена солнечным светом. Из гостиной предусмотрен выход на летнюю террасу (11,3 кв.м). Гостевая комната/Кабинет (8,4 кв.м): Удобное изолированное помещение на первом этаже, которое можно адаптировать под ваши нужды. Технические помещения: Вместительный холл (12,6 кв.м), удобный санузел и отдельная котельная (5,1 кв.м), полностью отвечающая требованиям для установки газового или твердотопливного оборудования. Второй этаж: Приватная зона отдыха Три спальни: Просторные и светлые комнаты (16; 14,7 и 11,9 кв.м). Из главной спальни организован выход на уютный балкон. Гардеробная (4,4 кв.м): Позволяет отказаться от громоздких шкафов в комнатах и удобно хранить вещи. Большая ванная комната (9,3 кв.м): Площадь позволяет с легкостью разместить как угловую ванну, так и душевую кабину, стиральную машину и системы хранения.
