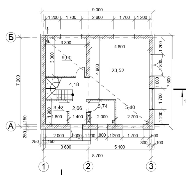
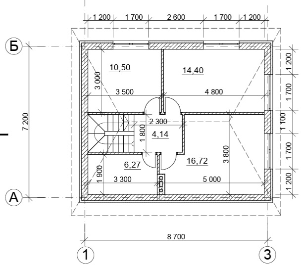
Дом двухэтажный до 130м2
- Двухэтажный компактный коттедж правильной прямоугольной формы. Такая форма является наиболее энергоэффективной, так как минимизирует потери тепла через углы. - Полноценные два этажа (не мансарда), что позволяет комфортно планировать спальни на втором уровне без скошенных потолков. -Стиль современный функционализм с элементами классики (за счет декоративной раскладки на окнах). - Окна: Белые металлопластиковые профили. Особое внимание привлекают шпросы (декоративные переплеты внутри стеклопакета), которые придают дому более уютный и «дорогой» вид. -Инженерные детали: Снаружи виден массивный кирпичный дымоход, что указывает на возможность установки камина в гостиной или наличие котельной, работающей на твердом топливе/газе. Дом выглядит добротным и «крепким». Благодаря отсутствию сложной архитектурной отделки на текущем этапе, будущий владелец может стилизовать его как под современный хай-тек (с использованием дерева и серой штукатурки), так и под классическую европейскую усадьбу.
